
Изборът на подходящи опори за стената на завесите е от решаващо значение. Използват се два основни основни типа изчислителен модел: прост модел носеща греда и модел с две педя.
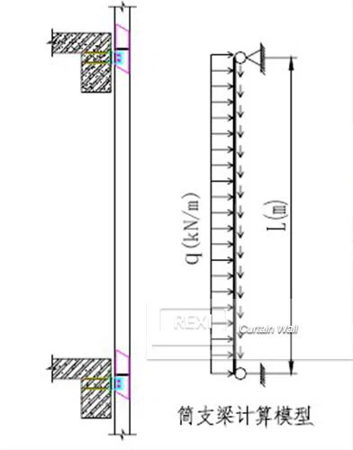
REXI Industry може да проектира много видове фасадни стени завеси самостоятелно, а нашата фабрика може да произвежда изделия от стъкло и профили, произведени в Китай. В процеса на проектиране на стената на завесите, нашият дизайнер се нуждае от поставяне на подпори за мъфини в структурната греда или плоча, които се състоят от стоманена скоба и вграждане. Положението на опорите може да повлияе важно на секцията на мултиона, което може да повлияе на цената на материала, тъй като голямата секция на мулионите ще бъде скъпа, а малката мулионна част ще е евтина. Така че изборът на подходящи опори ще бъде много важен. Има два основни основни типа модел за изчисление. Първият е прост модел носеща греда, при която всеки етаж има по една опора, а горната страна на мултиона свързва долната страна на мулиона с помощта на вложка. Вторият е модел с две лъчи, в който всеки етаж има две опори, а горната страна на мулиона свързва долната страна на мулиона с помощта на вложка. Предлагаме да се приеме прост модел носеща греда, когато височината на всеки етаж е къса и да се възприеме модел с две педя, когато височината на всеки етаж е много висока и гредата на всеки етаж също е голяма. Най-общо казано, двулентовият гредоред може да спести цената на стената на завесите, когато височината на етажните сгради е голяма, тъй като този модел има по-добро съпротивление на огъващ момент.


Простият модел носеща греда Моделът с две педя
Популярни тагове: Модел за изчисляване на стена за завеси, Китай, доставчици, производители, фабрика, цена





